Auto CAD2007将图形导入word中
在编辑word文件时,怎么样精确地把CAD图形导入到word文档中,并且把黑背景的CAD图转换为白色的图片呢?方法有好多种,可以用截图的方式来完成,也可以用复制---粘贴的方式来完成,但这些办法都不是很好用(你懂得),今天我推荐几种办法给大家,既简单而又精准,希望能帮到大家。
方法一:
先打开需要导出的CAD图形
然后将背景色设置为白色,这样便于在word文件中设置白底黑线的图形文件,具体操作,如图所示:

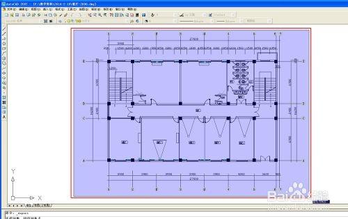
然后点击确定,整体背景色显示为白色

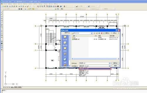
点击-----文件------输出-------
弹出对话框选择文件类型------图元文件(*.wmf)--------保存

鼠标变化为捕捉方块,点击方块-----把要输出区域框选----回车----完成

打开 word文件,点击----插入-----图片-----来自文件----

然后在弹出的对话框中选择要导入的图形文件---点击确定

这时看到导入的图片图形部分小而空白处较多,怎么办呢?

点击word文件中的图形编辑器-----裁剪-----把图形放大(或缩小)到需要的尺寸。

可以用这种办法放置多张图形。

方法二:
导入方法如下:
1、打开插入word的CAD图。
2、单击“文件”——“输出”,会弹出“输出数据”对话框。

3、在弹出的“输出数据”对话框里,下拉“文件类型”,选择“图元文件(*.wmf)”或者“位图(*.bmp)”保存。

4、打开WORD。
5、点击插入-》图片,将之前CAD中保存的图片导入即可。

方法三:
1、CAD中选择打印,在选择“打印机/绘图仪”的下拉箭头上点击,选择后缀名为*JPG.pc3,或*PNG.pc3中的任意一台,然后选择打印为图片文件的存放路径。
2、打开word,在任意位置上导入图片文件。
3、保存word文档。
4、该文件就是从CAD图形文件,到word的图文文档流程。
栏 目:office教程
本文地址:https://zz.feitang.co/wangzhanyunying/10380.html
您可能感兴趣的文章
- 11-262010 Office密钥过期怎么办?Office2010产品激活失败的解决方法
- 11-26office2010产品密钥有哪些?最新office2010激活密钥汇总
- 11-26office2007密钥哪里找?office2007永久密钥序列号
- 11-26Office2016怎么安装?Office2016安装激活教程
- 11-26Office2010最新激活密钥有哪些?Office2010激活密钥分享大全
- 11-26求Office2013密钥?2025最新Office2013激活密钥
- 11-26Office2013电话怎么激活?Office2013永久激活方法
- 11-26office2016打开卡顿怎么办?office2016打开缓慢的解决技巧
- 11-26Office 2010中文版怎么转换为英文版?
- 11-26office 2010激活错误代码0X8007000D如何解决?


阅读排行
- 12010 Office密钥过期怎么办?Office2010产品激活失败的解决方法
- 2office2010产品密钥有哪些?最新office2010激活密钥汇总
- 3office2007密钥哪里找?office2007永久密钥序列号
- 4Office2016怎么安装?Office2016安装激活教程
- 5Office2010最新激活密钥有哪些?Office2010激活密钥分享大全
- 6求Office2013密钥?2025最新Office2013激活密钥
- 7Office2013电话怎么激活?Office2013永久激活方法
- 8office2016打开卡顿怎么办?office2016打开缓慢的解决技巧
- 9Office 2010中文版怎么转换为英文版?
- 10office 2010激活错误代码0X8007000D如何解决?
推荐教程
- 07-012025最新office2010永久激活码免费分享,附office 2010激活工具
- 07-01怎么免费获取2025最新office2016专业增强版永久激活密钥/序列号
- 07-01office365怎么永久激活?2025.5最新office,office365序列号推荐
- 06-25office2021年最新永久有效正版激活密钥免费分享
- 06-13Office 2024激活工具,2025年Office2024激活工具及激活密钥分享
- 05-12Microsoft office2019产品激活密钥(100%永久激活)
- 07-01office2021专业增强版2021激活密钥2023密钥永久激活 万能office202
- 06-17经验分享Win11激活密钥怎么获取(win11专业版激活密钥)
- 07-01office 2021激活码/序列号推荐,office2021附激活工具
- 06-25Office2021激活密钥永久最新分享




